A Hillside Neighbourhood
Spacious lots, room to grow.
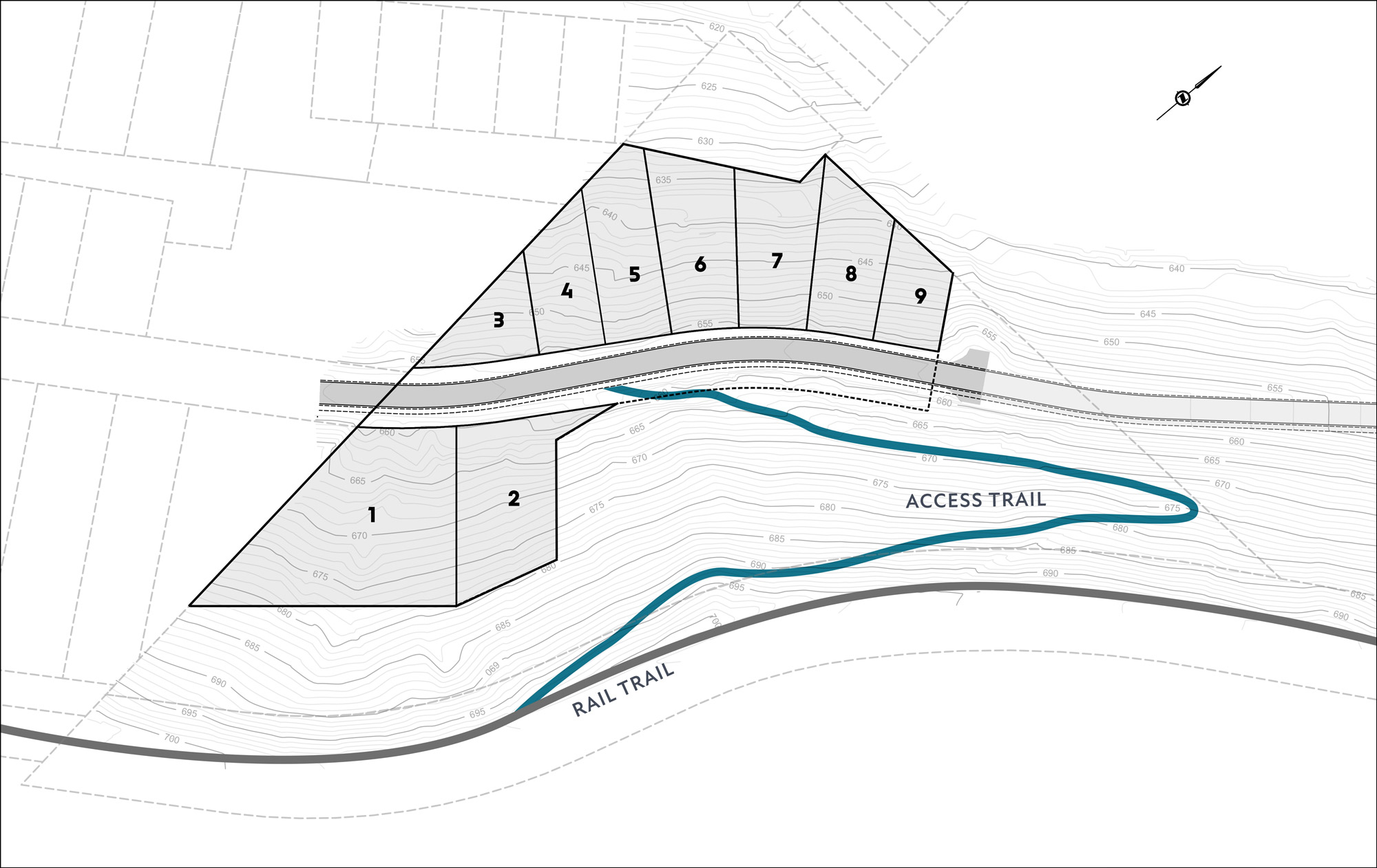
Callisto Views brings nine new residential lots to Nelson, each with wide 65-foot frontages that provide flexibility for home design and landscaping. The lots are gently situated on a hillside above town, offering a balance of privacy, light, and connection to the landscape.
Designed with nature in mind.
The new road curves naturally with the slope of the land, creating a street that feels both welcoming and in harmony with its setting. Forested edges frame the neighbourhood, while the open roadway and wider frontages give a sense of breathing room rarely found in newer developments.
Connected by Design
Linking trails and daily life.
Beyond road access, the project adds a new pedestrian trail connecting directly to the Great Northern Rail Trail. This link ties the neighbourhood into Nelson’s wider network of pathways, making it easy to walk, cycle, or ski out the back door. From morning commutes on foot to weekend adventures, the trail connection is a defining feature of Callisto Views.
Safer access for the community.
The Trevor Street extension has long been discussed as a way to improve safety in this part of Nelson. With the new road now complete, residents benefit from a critical secondary access route — an important feature in the event of a wildfire or other emergency. The subdivision also meets BC FireSmart standards, ensuring thoughtful planning for long-term resilience.
Lots Now Available – Phase 1
Nine lots offered for sale.
With disclosure registered and sales now open, Callisto Views offers a rare opportunity to build a home in Nelson’s hillsides. Pricing ranges from $300,000 to $750,000, with pending sales updated as lots are reserved.
To learn more, view lot plans, or confirm availability, please get in touch.
| Price | Status | Lot Area | Frontage | |
|---|---|---|---|---|
| Lot 1 | $749,000 | For Sale | 2925 m² | 29.4 m |
| Lot 2 | $390,000 | For Sale | 1554 m² | 48.9 m |
| Lot 3 | $299,000 | For Sale | 605 m² | 38.1 m |
| Lot 4 | – | SOLD | 778 m² | 20.0 m |
| Lot 5 | $319,000 | For Sale | 1082 m² | 20.0 m |
| Lot 6 | $339,000 | For Sale | 1197 m² | 20.2 m |
| Lot 7 | $339,000 | For Sale | 1079 m² | 20.2 m |
| Lot 8 | $339,000 | For Sale | 951 m² | 20.0 m |
| Lot 9 | $339,000 | For Sale | 598 m² | 20.0 m |
Nelson, BC: Life at the Edge of Nature
A small city with a big sense of place.
Nelson sits on the shores of Kootenay Lake, surrounded by mountains and forest. It’s a town known for its character homes, lively downtown, and strong sense of community. With four seasons of recreation at its doorstep — from skiing at Whitewater to hiking and paddling close to home — Nelson offers a lifestyle that’s active, creative, and closely tied to the landscape.
Four seasons of recreation.
Nelson is known for its year-round outdoor lifestyle. Whitewater Ski Resort, just 20 minutes away, offers deep powder in winter. In summer, hiking, mountain biking, and paddling are everyday pastimes. The Rail Trail itself becomes a hub for cross-country skiing, walking, and biking throughout the year. Living at Callisto Views means these experiences are part of your everyday surroundings.
Contact
Luke Mori
Fair Realty
250-551-4917
luke@lukemori.com
191 Baker Street, Nelson BC – V1L 4H1
See it in Person
View the properties in person:
Project Location
Sales & Communication
Contact Luke Mori for listing details. Lots 1, 3 & 7 are being offered for sale by Luke Mori at Fair Realty, Nelson BC & other lots for sale directly by the developer.
Luke Mori
Fair Realty
250-551-4917
Legal & Disclosure
A Disclosure Statement for Callisto Views has been filed with the Superintendent of Real Estate. A copy of the Disclosure Statement is available upon request. This is not an offering for sale. Any offering can only be made with a Disclosure Statement.
This website is provided for general information only. Prices, availability, and information are subject to change without notice. Purchasers are advised to review the Disclosure Statement and consult with their own professional advisors before making a purchase decision.
GST Disclosure
The purchase price for the lots may be subject to Goods and Services Tax (GST) at the rate of 5%, depending on the specific circumstances of the sale. Buyers are strongly advised to consult their own accountant, lawyer, or tax professional to determine whether GST applies to their specific purchase and to understand any related implications, including payment responsibilities or potential exemptions.
This disclosure is for informational purposes only and does not constitute legal or tax advice.



